
Автоматический угольный котел 0.6 МВт в Санкт-Петербурге
Цена 1 330 000 рублей с НДС
Эффективная работа даже на несортовом угле
Размеры сжигаемого кускового топлива до 10 см
Дымосос не требуется
Удобная и функциональная автоматика
Автоматическое золоудаление без остановки котла
Отапливаемая площадь помещения от 2300 до 3300 м2, отапливаемый объем от 6900 до 10000 м3.
Температура нагрева воды до 115 градусов.
Тип котла | Водогрейный | Гидравлическое сопротивление при перепаде t, МПа (кгс/cм²) | 0.07 (0.7) |
---|---|---|---|
Тип отопительного котла | Твердотопливный | Аэродинамическое сопротивление, Па (мм. вод. ст.) | 100 |
Бренд | HEATEXPERT | Разряжение в топочной камере, Па (мм. вод. ст.) | 20-40 (2-4) |
Марка котла | Котел КВа КБ, Котел малой мощности | Расход уходящих газов, м³/ч | 3300 |
Вид топки | Ретортная, Автоматическая | Температура уходящих газов, °C | 220 |
Максимальная тепловая мощность, МВт | 0.6 | Тяга | Уравновешенная |
Максимальная тепловая мощность, кВт | 600 | Полный объем котла, м³ | 640 |
Максимальная тепловая мощность, Гкал | 0.52 | Объем топочной камеры, м³ | 0.58 |
Диапазон регулирования, % | 30-100 | Объем штатного бункера, м³ | 0.80 |
Диапазон регулирования мощности, кВт | 180-600 | Объем штатного бункера (насыпная плотность 1300 кг/м³), кг | 1040 |
Топливо | Твердотопливный, Уголь | Размер топочной камеры, длина*ширина*высота, мм | Д 900х1410 |
Низшая теплота сгорания топлива, кКал/м³ | 5230 | Присоединительные размеры по водяному тракту, Ду | 80 |
Влажность | 30 | Присоединительные размеры газохода уходящих газов, ширина*высота / сечение, мм/м² | 600х200/0.12 |
Фракция дробления, не более, мм | от 15 мм до 50 мм (семечко, мелкий орех), допускается применение кусков до 100 мм до 10%) | Габаритные размеры котельного блока, длина*ширина*высота, мм | 1950x1600x2500 |
КПД, не менее, % | 80 | Габаритные размеры установки, длина*ширина*высота, мм | 3050x1600x2500 |
Расход топлива среднечасовой за отопительный сезон, кг/ч | 73 | Масса, кг | 2800 |
Расход топлива при максимальной нагрузке котла (УГОЛЬ), кг/ч | 127 | Количество контуров | Одноконтурный |
Расход условного топлива, кг/ч | 95 | Размещение | Напольный |
Отапливаемая площадь, м² | 4700-6700 | Тип камеры сгорания | Закрытый |
Отапливаемый объем, м³ | 13900-19900 | Управление | Электронное |
Срок автономной работы до, суток | 1 | Принцип работы твердотопливного котла | Классический |
Срок автономной работы в среднем за отопительный сезон, суток | 15 часов | Энергонезависимый | нет |
Срок автономной работы при максимальной нагрузке котла, ч | 9 | Тип питания | Трехфазное |
Температура воды, °C | 115 | Встроенный циркуляционный насос | нет |
Давление рабочей среды, МПа (кгс/cм²) | 0.15-0.3 (1.5-3) | Встроенный расширительный бак | нет |
Расход теплоносителя среды, м³/ч | 21 | Энергоэффективность | Высокая |
Это устройство работает со вспомогательным оборудованием, которое приобретается отдельно. Если вы хотите сразу узнать стоимость всей установки, добавьте заинтересовавшие вас позиции в корзину. Чтобы точно расчитать стоимость доставки до вашего объекта, укажите его адрес в корзине и оправьте нам заявку. Обычно мы отвечаем в течение дня.
Автоматический угольный котел 0.6 МВт в Санкт-Петербурге
Автоматический котел на угле 0.6 МВт нашего производства – это отсутствие постоянного контроля, техническая и экологическая безопасность, долговечность работы, простота в монтаже, эксплуатации и обслуживании, эффективность и экономичность.
Автоматический угольный котел 0.6 МВт предназначен для отопления и горячего водоснабжения загородных домов, коттеджей, ремонтных баз, офисных зданий, складских и производственных помещений, СТО, теплиц и животноводческих комплексов площадью до 5500 м2.
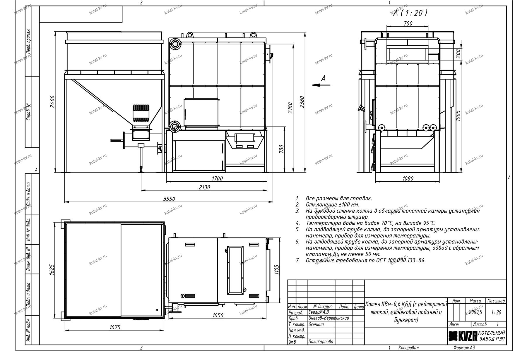
Конструкция автоматического котла на угле 0.6 МВт
Угольный котел 0.6 МВт с автоматической подачей конструктивно состоит из следующих блоков:
- котельный блок;
- шнековая система подачи топлива;
- бункер;
- ретортная горелка;
- золоудаление;
- контейнер шлака.
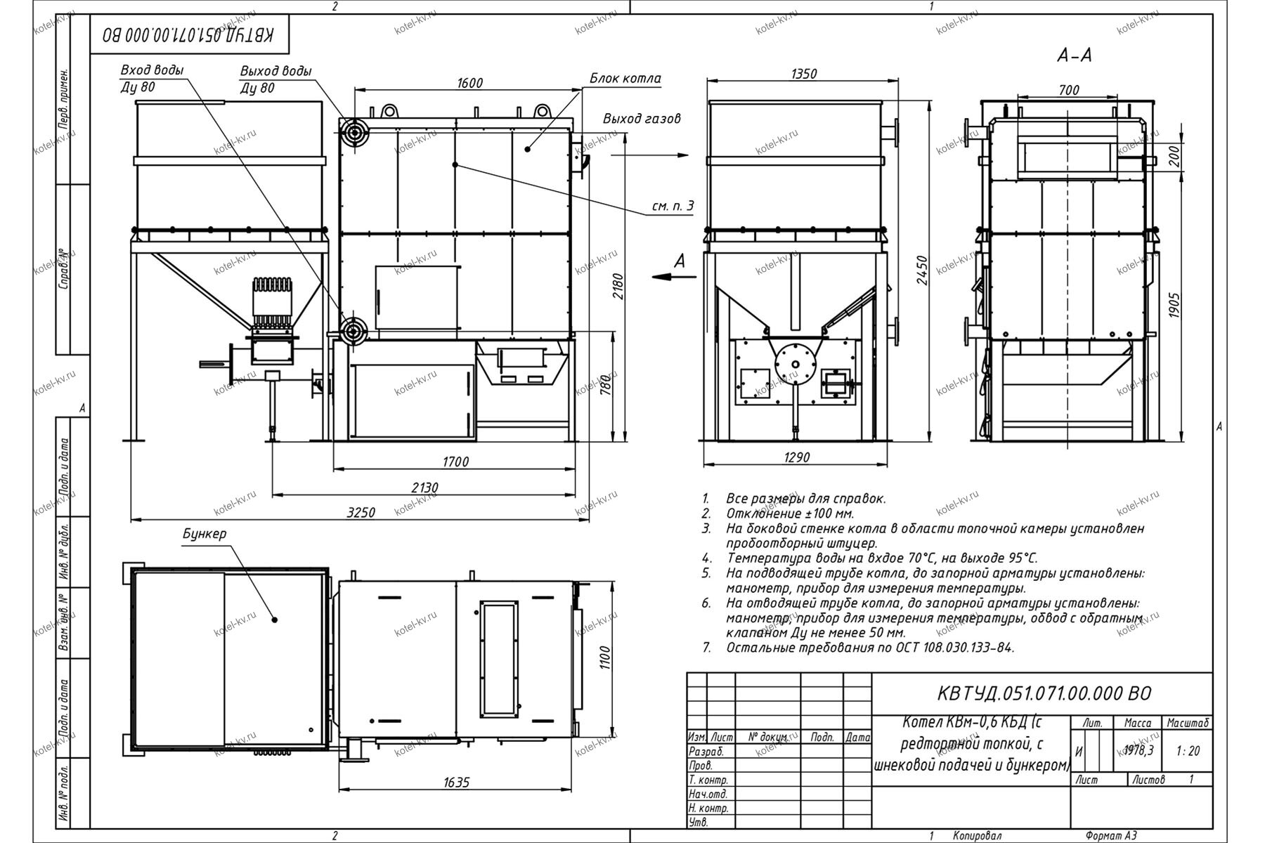
Современный котельный блок
Котельный блок автоматического угольного котла 0,6 МВт состоит из топки, конвективной части и обмуровки агрегата.
Конвективный теплообменник выполнен из параллельно установленных в шахматном порядке труб, расположенных над топкой. Такая компоновка труб исключает образование застойных зон со слабой циркуляцией теплоносителя, что способствует большей теплоотдаче и износостойкости.
Топка прямоугольной формы, экранирована водоохлаждаемыми панелями. Эффективное и безопасное водяное охлаждение топки препятствует закипанию котла даже при временной остановке в случаях со сбоем электроэнергии и прекращении циркуляции. В топке имеется дверка для обслуживания и розжига ретортной горелки и топки.
Благодаря конструкции теплообменной поверхности и наружней обшивке температура на поверхности автоматического котла на угле 0.6 МВт всегда находится в безопасных пределах и не превышает 40 градусов, что исключает травматизм.
Система топливоподачи для угля разного качества
Загрузка топлива осуществляется автоматически из расходного бункера в топку с помощью шнека. Наш автоматический котел может работать как на каменном, так и на буром угле от семечки до крупнокускового размером 10 см. В системе управления шнековой подачи предусмотрена защита от заклинивания шнека.
Безопасность топливопровода обеспечивается автономной системой пожаротушения, которая сработает вне зависимости от доступности электроэнергии.
Вместительный бункер
Вместительность бункера не менее 400 кг. Этого количества хватает до 7 дней непрерывной работы автоматического угольного котла 0.6 МВт при минимальной нагрузке. Дробилку для угля дополнительно приобретать не нужно. Для предотвращения зависания топлива в бункере предусмотрен штатный ворошитель. Это является неоспоримым преимуществом, поскольку необходимость в самостоятельной подготовке топлива отпадает.
Ретортная горелка
Ретортная горелка имеет Г-образную форму и снабжена чашей для сжигания топлива. Топливо на чашу поступает снизу реторты. Топливо двигается из бункера за счет шнека. Пламя горелки направляется вверх. Воздух, поступающий в область горения, поддерживает интенсивность пламени и охлаждает ретортную горелку, что предотвращает перегрев оборудования. Горелка снабжена отверстиями, через которые проникает вторичный воздух.
Горелку устанавливают в середине камеры сгорания, поэтому боковые стенки котла нагреваются равномерно и не перегреваются. Конструкция увеличивает путь к бункеру с топливом и снижает вероятность возгорания топлива в податчике.
Автоматическое золоудаление
Вам не понадобится останавливать и очищать котел от золы и шлака. Встроенный шнек автоматически удаляет образующуюся золу и шлак из котла в контейнер шлака, достаточно периодически его очищать.
Функциональная автоматика
Удобная и функциональная панель управления, позволяет с легкостью настраивать режимы работы автоматического котла, в зависимости от топлива, погодных условий и требований температурного режима в ваших помещениях.
Автоматика регулирует количество подаваемого топлива и воздуха в камеру сгорания.
При кратковременном перебое с электричеством автоматический котел на угле 0.6 МВт продолжает работать в том же режиме, что и до перебоя, исключая риск закипания или выхода из строя насосов.
Управление рециркуляционным насосом обеспечивает отсутствие конденсата на поверхностях нагрева при низкой нагрузке.
Работа автоматического котла на угле 0.6 МВт
Топливо по мере необходимости подается на реторту из бункера с помощью шнека. Подача воздуха, необходимого для горения, происходит одновременно с подачей топлива. Количество подаваемого топлива и воздуха регулируется автоматикой. Удаление золы в контейнер золошлакоудаления происходит по мере сгорания топлива.
Дополнительно вы можете приобрести GSM модуль, который позволяет контролировать состояние котла и отопительной системы, оповещает о нештатных ситуациях при работе котла. Повышает надежность работы котельной, так как сразу информирует Вас о любых сбоях в работе.
Купить Автоматический угольный котел 0.6 МВт в Санкт-Петербурге
Промышленный водогрейный автоматический котел на угле 0.6 МВт ( - мощность 0,6 МВт; - топливо уголь; - температура 115 градусов; - отапливаемая площадь* от 4700 до 6700 м2; - отапливаемый объем* от 13900 до 19900 м3 (* диапазон для самого холодного и самого теплого региона РФ)); - применение для отопления производства, жилых зданий, цехов, складов, промышленных предприятий, теплиц, гаражей, больниц, школ, садов, для монтажа в блочно модульных котельных.
Предлагаем вам подобрать мощность водогрейного промышленного котла по отапливаемой площади и объему, с учетом типа строения и данных о температуре в регионе и в Санкт-Петербурге, вида топлива.
Выбор водогрейного котла для котельной производится по каталогу отопительного оборудования нашего Котельного завода с помощью калькулятора подбора мощности. Водогрейные котлы отопления для промышленных предприятий предлагается выбрать из модельного ряда газовых, дизельных, мазутных, твердотопливных угольных и дровяных котлов, с ручными и автоматическими топками мощностью от 150 кВ до 4 МВт, и температурой нагрева теплоносителя до 115 градусов.
Подбор мощности водогрейного промышленного котла для отопления учитывает:
- температуру в самую холодную пятидневку в отопительный сезон. Для каждого региона РФ температура различна, данные берутся из СП 131.13330 «Строительная климатология»;
- тепло, необходимое для возмещения потерь тепла через ограждения, окна, двери здания и тепловые потери через не плотности строения и открываемые двери;
- температуру воздуха внутри помещений. Для различных типов и назначений строений она существенно отличается:
Тип отапливаемого строения | Температура внутри помещения |
---|---|
Жилые строения и административные здания | + 20 С° |
Больницы, детские сады | + 22 С° |
Учебные заведения, предприятия общепита, учреждения культуры, школы | + 16 С° |
Магазины и депо | + 15 С° |
Кинотеатры | + 14 С° |
Гаражи | + 10 С° |
Бани | + 25 С° |
- объем строения. Для определения наружного объема строения площадь по наружным стенкам строения на уровне первого этажа перемножается на высоту. Для панельных домов высота определяется: от уровня пола (нулевой отметки) до верхней плоскости теплоизоляционного слоя чердачного покрытия. Для остальных зданий высота определяется от уровня земли. Подбор мощности для отопления различных по назначению строений считается отдельно. Все полученные значения мощности складываются.
Подбор мощности водогрейного промышленного котла производится для общей суммарной мощности каждого отдельно стоящего задания.
Если вам требуется подобрать мощность котла в Санкт-Петербурге для котельной с учетом вентиляции здания, горячего водоснабжения объекта, потерь в теплотрассе - необходимо производить более подробный расчет. Данный расчет мы можем произвести для вас бесплатно. Отправьте опросный лист и заявку на электронный адрес sale@kotel-kv.ru или позвоните по телефону 8 (800) 551-70-98.
комплект